Greifen Sie zu !
Bei den Restposten handelt es sich um neue Anlagen meistens aus eine Doppelbestellung.
Oftmals sind die Anlagen Neuwertig und Originalverpackt und entweder vom Kunden nicht abgeholt, oder die gefertigte Anlage weicht von dem Kundenauftrag ab.
Reservieren Sie Ihre Toranlage ganz unkompliziert – telefonisch unter 030 31 00 77 00 oder per E-Mail an info@loewe-zaun.de.
Da es sich um Restposten-Waren handelt, Zwischenverkauf und Irrtümer vorbehalten
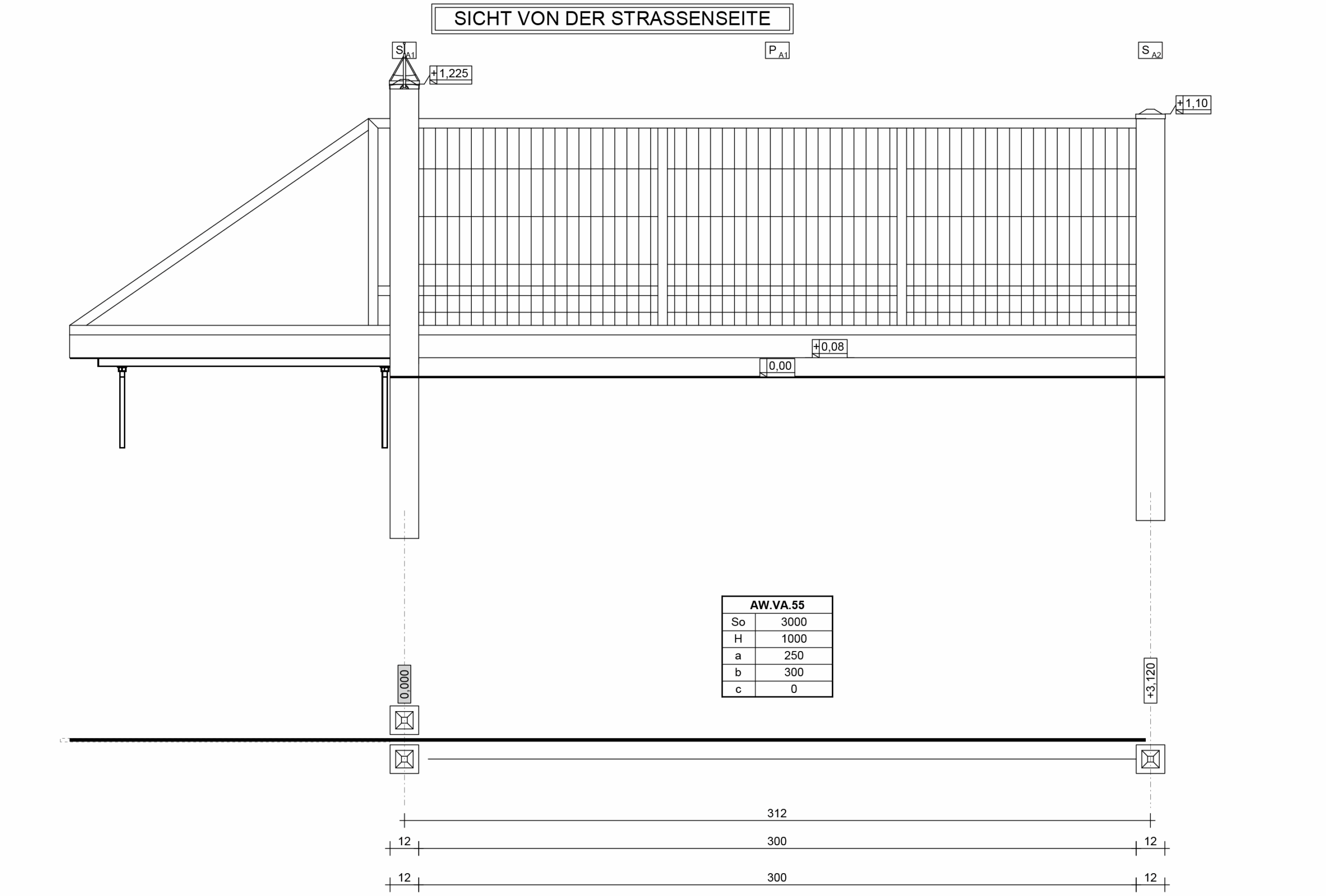
Schiebetor AW.10.VEGA.2DS (Doppelstabmatte) –
Breite: 3000 mm, Höhe: 1000 – elektrisch
1.990,- € Brutto
4.441,- € Brutto
Schiebetor AW.10.VEGA.2DS (Doppelstabmatte)
Torgröße:
Breite 3000 mm, Höhe 1000 mm (lichtes Maß).
Farbe: Anthrazitgrau RAL-7016
Tor kommt aus einer Doppelbestellung, ist neu und von Originalverpackt
inkl. Antrieb AWso PRO – Patentierter Pfostenantrieb inkl. 2 Handsender
-wartungsfreie Konstruktion-
linkes Tor – Schiebetor öffnet nach links von Strassenseite gesehen
AW. 10.VEGA.2DS – gerade Modellreihe CLASSIC als Doppelstabmatte
Feuerverzinkt und pulverbeschichtet.
Montageart mit zwei Bolzen
Falls gewünscht mit Lieferung und Montage in ca. 2-4 Wochen.
Versand-/Abholfertig in 2 Wochen Abholung in Filiale Mahlow kostenlos oder deutschlandweite Lieferung gegen 150€
Bei Selbstmontage können Sie die Fundamentpläne unter Montageanleitung einsehen.
Optional bieten wir Ihnen die bundesweite Komplett- oder Teilmontage bereits ab 690,00 € an.
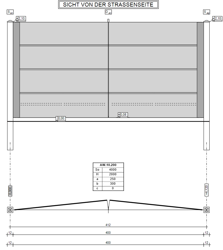
Flügeltor AW.10.200 (HOME INCLUSIVE) – Sichtschutz
Breite: 4000 mm, Höhe: 2000 mm – elektrisch
5.390,- € Brutto
9.546,- € Brutto
Flügeltor AW.10.200 (HOME INCLUSIVE) – Sichtschutz
Exklusiv und Modern, für die neuste und Stylische Architektur. Perfekter Sichtschutz im Tor und Zaun.
Beidseitige Aufsatzsegement- aus Metallform-Panelen.
Panelhöhe ca. 500 mm.
Torgröße:
Breite 4000 mm, Höhe 2000 mm (lichtes Maß).
Sonderfarbe: Anthrazit-Grau Struktur (Hi Modern Graphit)
Zweiflügelige Torkonstruktion aus 40 x 40 mm Vierkantprofil.
Torbreite 4000 mm inklusive Scharniere, (lichtes Maß zwischen Pfosten).
Torhöhe 2000 mm zuzüglich ca 8 cm Bodenfreiheit.
Aktiver Flügel ( X )links von der Straße gesehen, (öffnet zuerst).
Toröffnung 90 °
inkl. Marantec-Drehflügeltorantrieb Typ Comfort 525 BILINK-System.
Smarthome geeignet.
+ 1 x Handsender
Montageart B,
Montageplatten mit einstellbaren Scharnieren
(für mitbestellte Stahlpfosten).
inkl. 2 x Stahlpfosten (120 x 160mm) zum einbetonieren
Falls gewünscht mit Lieferung und Montage in ca. 2-4 Wochen.
Versand-/Abholfertig in 2 Wochen Abholung in Filiale Mahlow kostenlos oder deutschlandweite Lieferung gegen 150€
Bei Selbstmontage können Sie die Fundamentpläne unter Montageanleitung einsehen.
Optional bieten wir Ihnen die bundesweite Komplett- oder Teilmontage bereits ab 690,00 € an.
Pforte AW.10.200 (HOME INCLUSIVE) – Sichtschutz
Breite: 1000 mm, Höhe: 2000 mm – mit Elektromagnet-Schloss
1490,- € Brutto 3.014,- € Brutto
Flügeltor AW.10.200 (HOME INCLUSIVE) – Sichtschutz
Pfortenbreite: 1000 mm inklusive Scharniere, (lichtes Maß zwischen Pfosten).
Pfortenhöhe 2000 mm zuzüglich ca. 8 cm Bodenfreiheit.
Schaniere Polyamid gelagert ( Kein Kontakt von Metall auf Metall )
Sonderfarbe: Anthrazit-Grau Struktur (Hi Modern Graphit)
Öffnung nach Innen
Rechte Pforte (Griff links – Pforte öffnet rechts)
Schloss mit 3 Schlüsseln und Elektromagnet-Schloss.
Montageart B, Montageplatten mit einstellbaren Scharnieren in schwarz RAL 9005
mit Stahlpfosten 2 x 12er Pfosten zum einbetonieren
Falls gewünscht mit Lieferung in 2-4 Wochen.
Versand-/Abholfertig in 2 Wochen
Abholung in Filiale Mahlow kostenlos
oder deutschlandweite Lieferung gegen 75€
asymmetrisches Flügeltor AW.10.228 (HOME INCLUSIVE) – Sichtschutz
Breite: 3970 mm, Höhe: 1800 mm – manuell
2.290,- € Brutto
6.835,- € Brutto
asymmetrisches Flügeltor AW.10.228 (HOME INCLUSIVE) – Sichtschutz
Torgröße:
Breite 3970 mm, Höhe 1180 mm (lichtes Maß).
Farbe: Anthrazitgrau RAL-7016
Zweiflügelige asymmetrische Torkonstruktion aus 40 x 40 mm Vierkantprofil.Torbreite 3970 mm inklusive Scharniere, (lichtes Maß zwischen Pfosten).
Torhöhe 1800 mm zuzüglich ca 8 cm Bodenfreiheit.
Kleiner Flügel rechts (~1200mm)
Großer Flügel links (~2770mm)
Aktiver Flügel rechts von Strasse gesehen, (öffnet zuerst). Toröffnung 90 °
Schloss mit 3 Schlüsseln, komplette Drückergarnitur (entfällt bei elektrischer Ausführung).
Montageart B,
Montageplatten mit einstellbaren Scharnieren
(für mitbestellte Stahlpfosten).
inkl. 2 x Stahlpfosten (160 x 160mm) zum einbetonieren
Falls gewünscht mit Lieferung und Montage in ca. 2-4 Wochen.
Versand-/Abholfertig in 2 Wochen Abholung in Filiale Mahlow kostenlos oder deutschlandweite Lieferung gegen 150€
Bei Selbstmontage können Sie die Fundamentpläne unter Montageanleitung einsehen.
Optional bieten wir Ihnen die bundesweite Komplett- oder Teilmontage bereits ab 690,00 € an.
Flügeltor AW.10.TT (CLASSIC) –Sichtschutz
Breite: 4600 mm, Höhe: 1950 mm – manuell
1.690,- € Brutto
3.707,- € Brutto
Flügeltor AW.10.TT (CLASSIC) –Sichtschutz
Torgröße:
Breite 4600 mm, Höhe 1950 mm (lichtes Maß).
Tor kommt aus einer Doppelbestellung, ist neu und von Originalverpackt
Farbe: Anthrazitgrau RAL-7016
Zweiflügelige Torkonstruktion aus 40 x 40 mm Vierkantprofil.
Torbreite 4600 mm inklusive Scharniere, (lichtes Maß zwischen Pfosten).
Torhöhe 1950 mm zuzüglich ca 8 cm Bodenfreiheit.
Aktiver Flügel links von der Straße gesehen, (öffnet zuerst).
Toröffnung 90 °
Schloss mit 3 Schlüsseln, komplette Drückergarnitur,
Montageart M, Montageplatten mit einstellbaren Scharnieren in schwarz RAL 9005 mit geringen Lichtspaltmaß zwischen Pfosten und Torflügel (für mitbestellte Stahlpfosten).
Falls gewünscht mit Lieferung und Montage in ca. 2-4 Wochen.
Passend dazu ist auch eine Pforte mit einer Breite von 130 cm erhältlich (siehe unten).
Versand-/Abholfertig in 2 Wochen Abholung in Filiale Mahlow kostenlos oder deutschlandweite Lieferung gegen 150€
Bei Selbstmontage können Sie die Fundamentpläne unter Montageanleitung einsehen.
Optional bieten wir Ihnen die bundesweite Komplett- oder Teilmontage bereits ab 690,00 € an.
Pforte AW.10.TT (CLASSIC) – Breite: 1300 mm, Höhe: 1950
889,- € Brutto 1.798,- € Brutto
AW.10.TT (CLASSIC) – Pforte (Sichtschutz)
Pfortenbreite: 1300 mm inklusive Scharniere, (lichtes Maß zwischen Pfosten).
Pfortenhöhe 1950 mm zuzüglich ca. 8 cm Bodenfreiheit.
Schaniere Polyamid gelagert ( Kein Kontakt von Metall auf Metall )
Farbe: Anthrazitgrau RAL-7016
Öffnungsrichtung der Pforte
Ansicht von der Straße
Öffnung nach Innen
Linke Pforte (Griff rechts – Pforte öffnet links )
Tor kommt aus einer Doppelbestellung, ist neu und von Originalverpackt
Schloss mit 3 Schlüsseln, komplette Drückergarnitur
Montageart M, Montageplatten mit einstellbaren Scharnieren in schwarz RAL 9005 mit geringen Lichtspaltmaß zwischen Pfosten und Torflügel (für mitbestellte Stahlpfosten).
mit Stahlpfosten 2 x 12er Pfosten zum einbetonieren
Falls gewünscht mit Lieferung in 2-4 Wochen.
Versand-/Abholfertig in 2 Wochen
Abholung in Filiale Mahlow kostenlos
oder deutschlandweite Lieferung gegen 75€
Schiebetor AW.10.VEGA.2DS (Doppelstabmatte) –
Breite: 6000 mm, Höhe: 1000 – elektrisch
2.500,- € Brutto
5.972,- € Brutto
CLASSIC AW.10.VEGA.2DS – Schiebetor mit Antrieb
Torgröße: Breite 6000 mm, Höhe 1000 mm (lichtes Maß).
Tor kommt aus einer Doppelbestellung, ist neu und von Originalverpackt
inkl. Mit patentierten Pfostenantrieb
-wartungsfreie Konstruktion-
Farbe Anthrazitgrau RAL-7016
linkes Tor – Schiebetor öffnet nach links von Strassenseite gesehen
AW. 10.VEGA.2DS – gerade Modellreihe CLASSIC als Doppelstabmatte
Feuerverzinkt und pulverbeschichtet.
Montageart mit drei Bolzen
Optional mit Stahlpfosten erhältlich – Aufpreis: je 199,00 € brutto
Falls gewünscht mit Lieferung und Montage in ca. 2-4 Wochen.
Versand-/Abholfertig in 2 Wochen Abholung in Filiale Mahlow kostenlos oder deutschlandweite Lieferung gegen 150€
Bei Selbstmontage können Sie die Fundamentpläne unter Montageanleitung einsehen.
Optional bieten wir Ihnen die bundesweite Komplett- oder Teilmontage bereits ab 690,00 € an.
Schiebetor – AW 10.TT Füllung mit Trapezblech T-10 als Sichtschutz –
Breite: 5000 mm, Höhe: 1950 – elektrisch
2.250,- € Brutto
5.892,- € Brutto
Modellreihe AW 10.TT Füllung mit Trapezblech T-10 als Sichtschutz – Schiebetor mit Antrieb
Torgröße: Breite 5000 mm, Höhe 1950 mm (lichtes Maß).
Das Tor wurde bereits verbaut und zeigt Gebrauchsspuren.
inkl. Mit patentierten Pfostenantrieb
-wartungsfreie Konstruktion-
Farbe Moosgrün RAL-6005 (von beiden Seiten)
linkes Tor – Schiebetor öffnet nach links von Strassenseite gesehen
Modellreihe AW 10.TT Füllung mit Trapezblech T-10 als Sichtschutz.
Feuerverzinkt und pulverbeschichtet.
Montageart mit zwei Bolzen
Optional mit Stahlpfosten erhältlich – Aufpreis: je 199,00 € brutto
Falls gewünscht mit Lieferung und Montage in ca. 2-4 Wochen.
Versand-/Abholfertig in 2 Wochen Abholung in Filiale Mahlow kostenlos oder deutschlandweite Lieferung gegen 150€
Bei Selbstmontage können Sie die Fundamentpläne unter Montageanleitung einsehen.
Optional bieten wir Ihnen die bundesweite Komplett- oder Teilmontage bereits ab 690,00 € an.
Schiebetor – Modellreihe AW 10.00, Rahmenkonstruktion zur individuellen Füllung / Beschlagung –
Breite: 5000 mm, Höhe: 1950 – elektrisch
1.950,- € Brutto
5.333,- € Brutto
Modellreihe AW 10.00, Rahmenkonstruktion zur individuellen Füllung / Beschlagung.
Maximales Gewicht der Füllung 25kg/m². – Schiebetor mit Antrieb
Torgröße: Breite 5000 mm, Höhe 1950 mm (lichtes Maß).
Das Tor wurde bereits verbaut und zeigt Gebrauchsspuren.
inkl. Mit patentierten Pfostenantrieb
-wartungsfreie Konstruktion-
Farbe Anthrazitgrau RAL-7016
rechtes Tor – Schiebetor öffnet nach rechts von Strassenseite gesehen
Modellreihe AW 10.00 zur individuellen Füllung.
Feuerverzinkt und pulverbeschichtet.
Montageart mit drei Bolzen
Optional mit Stahlpfosten erhältlich – Aufpreis: je 199,00 € brutto
Falls gewünscht mit Lieferung und Montage in ca. 2-4 Wochen.
Versand-/Abholfertig in 2 Wochen Abholung in Filiale Mahlow kostenlos oder deutschlandweite Lieferung gegen 150€
Bei Selbstmontage können Sie die Fundamentpläne unter Montageanleitung einsehen.
Optional bieten wir Ihnen die bundesweite Komplett- oder Teilmontage bereits ab 690,00 € an.
Pforte AW.10.72(CLASSIC) – Breite: 1000 mm, Höhe: 1200
789,- € Brutto 1.402,- € Brutto
CLASSIC AW.10.72 – Pforte
Torgröße: Breite 1000 mm, Höhe 1200 mm (lichtes Maß).
Tor kommt aus einer Doppelbestellung, ist neu und von Originalverpackt
Schloss mit 3 Schlüsseln, komplette Drückergarnitur,
Farbe: Steingrau RAL 7030
-mit Edelstahlklinke
AW. 10.72 P gerade Modellreihe CLASSIC.
Hohlprofile 70×20 mm, senkrecht verschweißt im
geschlossenen Rahmen 40 x 27 mm.
Feuerverzinkt und pulverbeschichtet.
mit Stahlpfosten 2 x 12er Pfosten zum einbetonieren
Falls gewünscht mit Lieferung in ca. zwei Wochen.
Versand-/Abholfertig in 2 Wochen
Abholung in Filiale Mahlow kostenlos
oder deutschlandweite Lieferung gegen 75€
Schiebetor AW.10.01(CLASSIC) – Breite: 2600 mm, Höhe: 1400 – elektrisch
1.990,- € Brutto 3.900,- € Brutto
Torgröße: Breite 2600 mm, Höhe 1400 mm (lichtes Maß).
Tor kommt aus einer Doppelbestellung, ist neu und von Originalverpackt
inkl. Mit patentierten Pfostenantrieb
-wartungsfreie Konstruktion-
Farbe Mossgrün RAL-6005
rechtes Tor – Schiebetor öffnet nach rechts von Strassenseite gesehen
AW. 10.01 P gerade Modellreihe CLASSIC mit 40 x 27 mm Profilen.
Hohlprofile senkrecht verschweißt an Querprofil 40 x 27 mm.
Abschluss mit schwarzer Kunststoffkappe.
Feuerverzinkt und pulverbeschichtet.
Montageart mit zwei Bolzen
mit Stahlpfosten 2 x 12er Pfosten
Falls gewünscht mit Lieferung und Montage in ca. zwei Wochen.
Versand-/Abholfertig in 2 Wochen
Abholung in Filiale Mahlow kostenlos
oder deutschlandweite Lieferung gegen 150€
Bei Selbstmontage können Sie die Fundamentpläne unter Montageanleitung einsehen.
Optional bieten wir Ihnen die Komplettmontage deutschlandweit für 1.620,00 €.
Industrie Flügeltor – Breite: 2500 mm, Höhe: 2400 – manuell
870,- € Brutto 1.641,- € Brutto
Einflügeliges Industrietor
Breite 2500 mm, Höhe 2400 mm (lichtes Maß zwischen den Pfosten).
Als Füllung stehen wahlweise 25 x 25 mm Quadratrohre
Inklusive 2 Pfosten
Bei manueller Ausführung:Inklusive Schloss, einstellbaren Bändern und einem vertikalen Riegel für den Standflügel.
Versand-/Abholfertig in 2 Wochen
Abholung in Filiale Mahlow kostenlos
oder deutschlandweite Lieferung gegen 250€
Bei Selbstmontage können Sie die Fundamentpläne unter Montageanleitung einsehen.
Optional bieten wir Ihnen die Komplettmontage für 990,00
Zum Inhalt springen










