Funkcjonalny słup ogrodzeniowy MultiBox łączy w sobie skrzynkę na listy i paczki, a także domofon i czytnik kodów. Dzięki niemu nie musimy odbierać przesyłki bezpośrednio od kuriera ani nawet wpuszczać go na posesję.
Ten wariant słupa MultiBox zawiera w standardzie: 1 wrzut na listy, wkład na paczki i wideodomofon Vidos DUO.
Funkcjonalny element Twojego ogrodzenia
Ogrodzenie ma przede wszystkim oddzielać posesję od świata zewnętrznego. MultiBox jest tym jego elementem, który ma za zadanie łączyć Twój dom z otoczeniem. Za pośrednictwem MultiBoxa odbierzesz pocztę, różnego rodzaju przesyłki, a nawet duże paczki. Nie musisz być w domu, nie musisz czekać na telefon kuriera – MultiBox wyręczy Cię bez względu na porę.
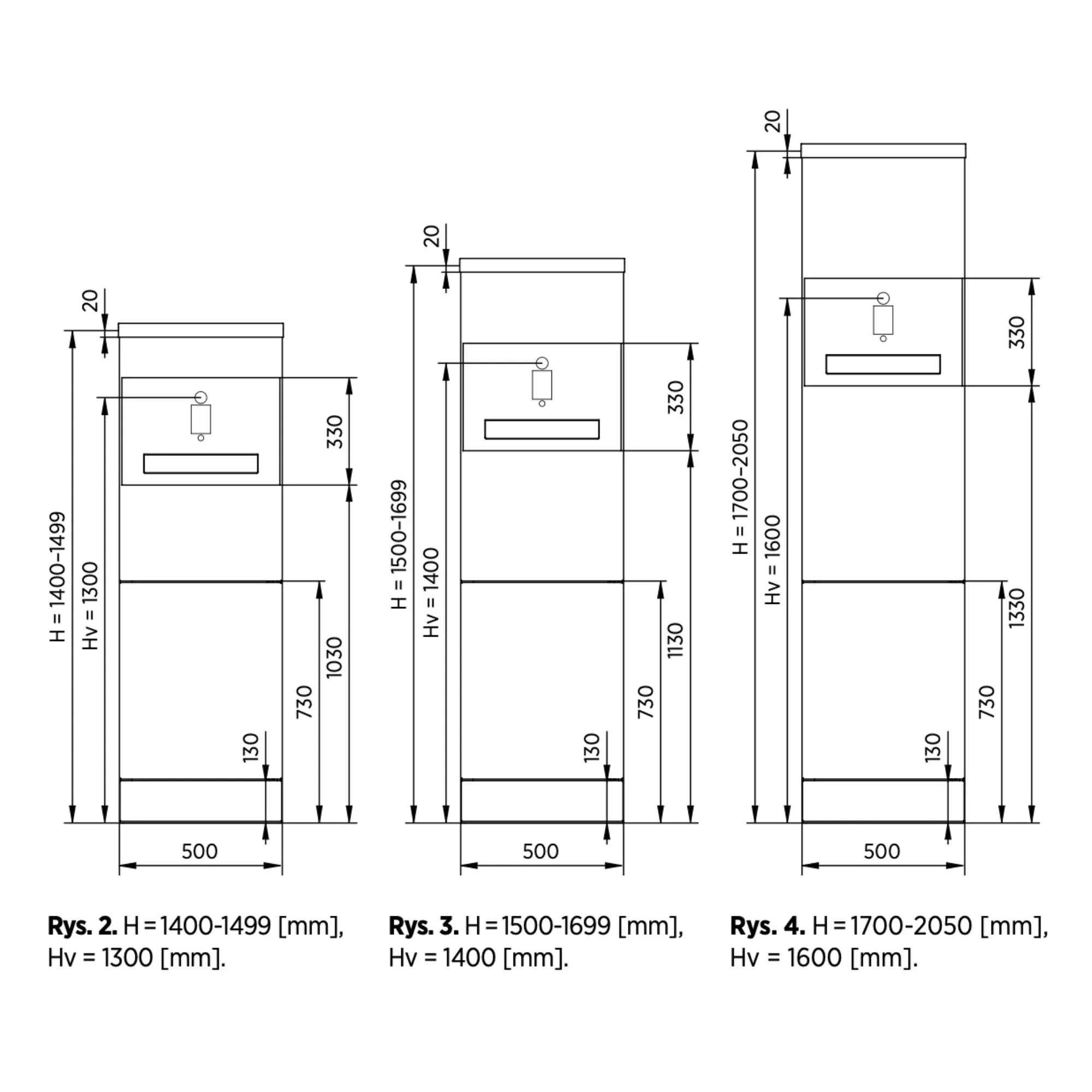
Dobierz wariant zgodny ze swoimi potrzebami
Sam decydujesz o tym, jak MultiBox będzie wspierał Cię w codziennym życiu. Ta wersja słupa MultiBox umożliwia wykorzystanie wyłącznie jednego wrzutu na listy, wkładu na duże paczki i wideodomofonu. Jeśli szukasz MultiBoxa z więcej niż jednym wrzutem na listy sprawdź nasz MultiBox 450×300.
Wideodomofon w standardzie
MultiBox 500×300 w standardzie zawiera wideodomofon Will see TWO.
Istnieje możliwość zmiany wideodomofonu na:
- Will see ONE
- Vidos X
- Somfy V500 PRO io Connect
Blacha montażowa Domofonu Vidos One i Duo wykonana jest w standardzie ze stali nierdzewnej. Istnieje możliwość malowanie blachy montażowej w kolorze słupa.
Część doskonałego ogrodzenia
MultiBox jest częścią systemów ogrodzeniowych WIŚNIOWSKI. Dzięki temu idealnie dopasuje się do każdego ich modelu, łącząc w sobie wszystkie ich zalety ze swoimi funkcjonalnościami. MultiBox – podobnie jak ogrodzenia WIŚNIOWSKI – to rozwiązanie trwałe, bezpieczne i komfortowe. Gwarantuje, że listy i przesyłki są chronione przed osobami z zewnątrz i warunkami pogodowymi.
Akcesoria dla pełnej funkcjonalności
By w pełni skorzystać z zalet MultiBoxa można wyposażyć go dodatkowo w moduł zasilania (gniazdko 230V) i wizjer w drzwiach od strony posesji.
Gniazdko umożliwi podłączenie dodatkowych urządzeń (np. kosiarki do trawy używanej w ogrodzie). Wizjer w drzwiach pozwoli sprawdzić zawartość MultiBoxa bez konieczności otwierania drzwiczek.
Możesz też zamówić Zestaw fundamentowy, w którego skład wchodzi kosz fundamentowy, kotwa, podkładka, nakrętka. Kosz fundamentowy to płyta stalowa, która pozwala zabetonować szpilki z prawidłowym rozstawem.
Uzupełnij swoje ogrodzenie o funkcjonalne dodatki.
Sprawdź więcej w dziale akcesoria.
Nie znalazłeś odpowiedniego wymiaru lub koloru?
Prezentowany produkt występuje również w wymiarach specjalnych i dowolnych kolorach z palety RAL.
Zum Inhalt springen








